Réduire le menu
Environnement
Maquette & Lots
Visite des Lots témoins
Mudry Immobilier
-
Les Grandes Vignes
-
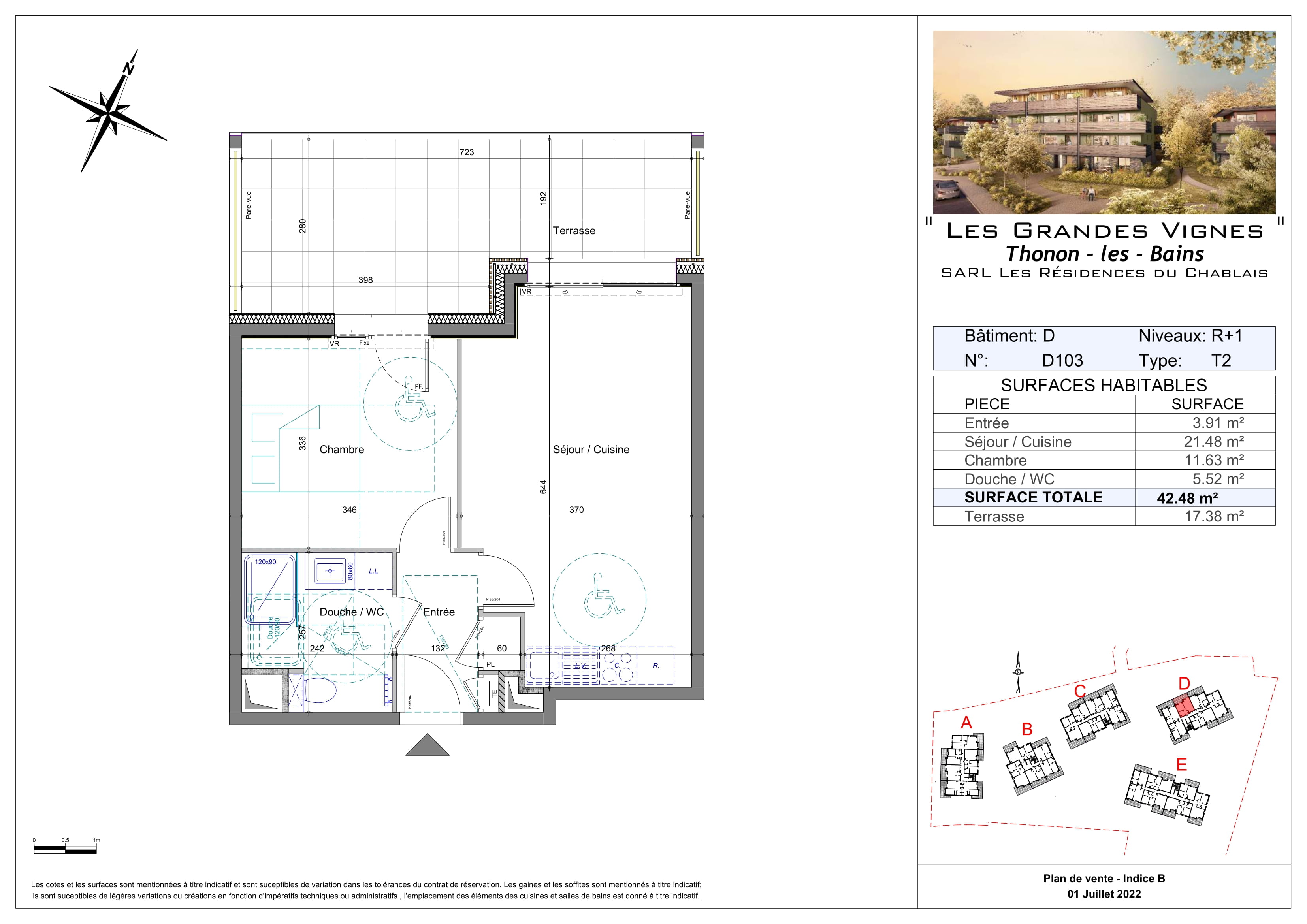
Bâtiment D - Lot D103
Chercher un lot
Menu
Retour
Affichage :
Plan 3D
Plan 2D
Ajouter aux favoris
Ajouter aux favoris
Situation
Affichage :
Plan 3D
Plan 2D
réinitialiser la vue ?
Contact
Infos
Niveaux
Masquer les infos
Afficher les infos
Type :
2 pièces
Niveau :
1
er
étage
Superficie :
42.97m²
Statut :
Réservé
Télécharger le plan de vente
Retour
Type :
2 pièces
Niveau :
1
er
étage
Superficie :
42.97m²
Statut :
Réservé
Ouvrir le configurateur
Télécharger le plan de vente
Partager ce lot
Contact
Mudry Immobilier
-
Les Grandes Vignes
-
Bâtiment D - Lot D103">
Pour une meilleure expérience, passez en mode portrait.
Maquette 360°
& Lot en 3D
Découvrir